.
 ООО "Компенсатор"
  Отдел продаж: +7-499-392-61-02,   8-800-222-61-02
  E-mail: info@kompensator.me  Отдел продаж: zakaz@kompensator.me
  01.01.2018

2КСУК - подробное описание

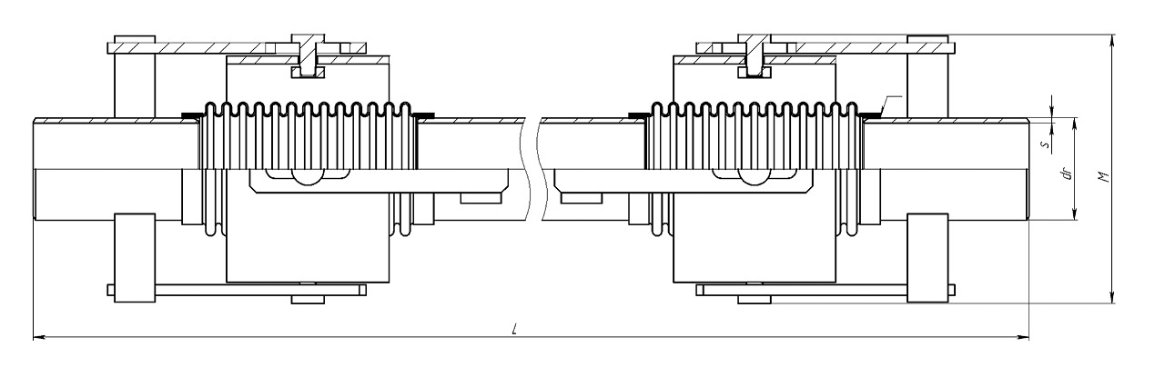
Двухсекционный компенсатор сильфонный универсальный карданного типа

Даная конструкция разработана специально для регионов с сейсмичностью до 9 баллов, а также дилатационных переходов трубопроводов. Компенсаторы сильфонные универсальные карданного типа способны поглощать движения в любых направлениях, которые могут возникнуть при землетрясениях и оседании грунта (Х,Y, Z, круговые движения), тем самым защищая трубопроводные системы. Ограничительная арматура, используемая в компенсаторе, спроектирована с учетом возникающих нагрузок и защищает от избыточных перемещений. Благодаря наличию движущихся и гибких элементов, жесткие трубопроводные системы становятся защищенными от разрушений.

Технические характеристики указаны в таблицах 1 и 2.

0000001 2KCYK

 

 

 

 

 

 Таблица 1  

Условное обозначение  Номинальный диаметр Номинальное давление Размеры Расчетный вес Расчетная жёсткость

Расчетная эффективная

площадь

DN РN dr s M L (мм)

кг

kg

Сλ Sэф

Kомпенсирующая способность:
осевой ход - х (мм)
сдвиг-y (мм)
поворот - z (мм)

мм

mm

Бар

bar

мм

mm

мм

mm

мм

mm

x=100 y=100 z=100 x=100 y=200 z=200 x=100 y=300 z=300 x=100 y=100 z=100 x=100 y=200 z=200 x=100 y=300 z=300

Н/мм

N/mm

см2

cm2

2КСУК 65 65 16 76 4,0 По запросу закачика 770 970 1220 16,4 17,8 19,6 157,60 59,99
2КСУК 80 80 16 89 4,0 820 1020 1250 18 19,7 21,6 142,35 82,52
2КСУК 100 100 16 108 4,0 820 1020 1280 26 28 30,7 135,9 116,9
2КСУК 125 125 16 133 5,0 950 1150 1460 30,9 33,4 37,3 181,82 154,38
2КСУК 150 150 16 159 5,0 950 1150 1460 36,3 39,7 45 217,99 236,42
2КСУК 200 200 16 219 8,0 1120 1340 1690 57,3 63,9 74,9 360,15 456,92
2КСУК 250 250 16 273 8,0 1120 1340 1690 76,1 86,1 102 379,41 683,49
2КСУК 300 300 16 325 8,0 1300 1500 1700 115,8 126,7 137,6 373,57 959,91
2КСУК 350 350 16 377 7,0 1300 1500 1700 133,2 145,9 158,6 413,44 1234,74
2КСУК 400 400 16 426 9,0 1500 1700 1900 134,2 178,7 192,7 889,75 1622,40
2КСУК 500 500 16 530 8,0 1500 1700 1900 262 282,4 302,8 971,13 2463,01
2КСУК 600 600 16 630 10,0 1700 1900 2100 390,3 416,1 441,8 1768,73 3433,65
2КСУК 700 700 16 720 10,0 1900 2100 2300 555,6 588,6 621,6 1378,3 4484,08
2КСУК 800 800 16 820 12,0 2100 2300 2500 751,2 790 829 1678,40 5787,21
2КСУК 900 900 16 920 14,0 2300 2500 2700 995 1050 1104 2085,31 7241,25
2КСУК 1000 1000 16 1020 14,0 2500 2700 2900 1132 1191,6 1252,3 2657,51 8841,39
2КСУК 1200 1200 16 1220  16,0 2700 2900  3100 1788,7  1883,7 1978,8 2301,63 12546,29

Примечание:
1. Возможны варианты с другими техническими параметрами.
2. Возможны варианты с иными концевыми арматурами: фланцевое соединение, резьбовое соединение.
3. Расчетный вес компенсатора может отличаться от фактического.
4. Внешний вид конструкции может отличаться.
5. Возможны варианты с усиленным краданом.
6. Расчетная жёсткость компенсатора может отличаться от фактической.

0000001 2KCYK

 

 

 

 

 

 

 Таблица 2

Условное обозначение Номинальный диаметр Номинальное давление Размеры Расчетный вес Расчетная жёсткость

Расчетная эффективная площадь

DN РN dr s M L (мм)

кг

kg

Сλ Sэф

Kомпенсирующая способность:
осевой ход - х (мм)
сдвиг-y (мм)
поворот - z (мм)

мм

mm

Бар

bar

мм

mm

мм

mm

мм

mm

x=100 y=100 z=100 x=100 y=100 z=100 x=100 y=100 z=100 x=100 y=100 z=100 x=100 y=100 z=100 x=100 y=100 z=100

Н/мм

N/mm

см2

cm2

2КСУК 65 65 25 76 4,0 По запросу закачика 790 990 1240 16,5 17,9 19,7 157,60 59,99
2КСУК 80 80 25 89 4,0 840 1040 1270 18,2 19,9 21,8 142,35 82,52
2КСУК 100 100 25 108 4,0 840 1040 1300 26,2 28,2 30,9 135,9 116,9
2КСУК 125 125 25 133 5,0 970 1170 1480 31,1 33,6 37,6 181,82 154,38
2КСУК 150 150 25 159 5,0 970 1170 1480 36,6 40 45,3 217,99 236,42
2КСУК 200 200 25 219 8,0 1140 1360 1710 57,9 64,5 75,5 360,15 456,92
2КСУК 250 250 25 273 8,0 1140 1360 1710 77 87 103 379,41 683,49
2КСУК 300 300 25 325 8,0 1330 1530 1730 120,1 131,1 142 682,21 962,11
2КСУК 350 350 25 377 7,0 1330 1530 1730 133,9 146,6 159,3 772,21 1237,23
2КСУК 400 400 25 426 9,0 1550 1750 1950 171,8 186,2 200,6 831,26 1623,83
2КСУК 500 500 25 530 8,0 1550 1750 1950 283,8 304,4 324,7 1612,68 2468,29
2КСУК 600 600 25 630 10,0 1770 1970 2170 401,1 426,9 452,6 1768,73 3433,65
2КСУК 700 700 25 720 10,0 1980  2180 2380 569,7 602,7 635,7 1378,30 4484,08
2КСУК 800 800 25 820 12,0 2200 2500 2700 775,3 824,9 863,9 1678,40 5787,21
2КСУК 900 900 25 920 14,0 2400 2600 2800 1026,5 1116,3 1170,3 2085,31 7241,25
2КСУК 1000 1000 25  1020 14,0 2600 2800 3000 1167 1226,6 1287,3 2657,51 8841,39
2КСУК 1200 1200 25  1220 16,0 2800 3000 3200  1836,3 1931,3 2026,3 2301,63 12546,29

Примечание:
1. Возможны варианты с другими техническими параметрами.
2. Возможны варианты с иными концевыми арматурами: фланцевое соединение, резьбовое соединение.
3. Расчетный вес компенсатора может отличаться от фактического.
4. Внешний вид конструкции может отличаться.
5. Возможны варианты с усиленным краданом.
6. Расчетная жёсткость компенсатора может отличаться от фактической.

Заказ обратного звонка

Пожалуйста, заполните поле "Контактное лицо".
Пожалуйста, оставьте номер телефона.
Пожалуйста, заполните поле "Желаемое время звонка".
Вы не заполнили текст Сообщения.

Нажимая на кнопку «Отправить», я соглашаюсь на обработку
моих персональных данных и с политикой
ООО "Компенсатор" в отношении обработки персональных данных.